(719) 244-2696 Dwell 719 Real Estate Team
Refine Search

3664 E 29th Avenue, Denver, CO 80205

$400,000
  • 3664 E 29th Avenue, Denver, CO 80205 Main Photo

4 Total Photos [Click to View All]

Active
LOT SIZE 0.110 acres MLS#4607029
STATUSActive PROPERTY TYPELand - Residential SUBDIVISIONSkyland SCHOOLDenver 1

Listing Courtesy of: Denver Nook
Agency Contact: Liz@DenverNook.com,970-919-0447
IDX logo


Property Description

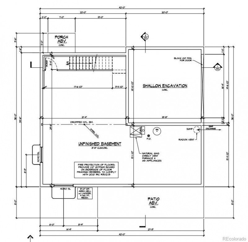
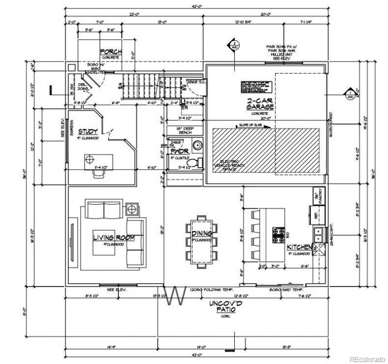
Set against the backdrop of Denvers City Park, and close to downtown, RiNo and 9th & Co, this lot marries urban convenience and tranquility. Plans are already in the permitting process for a semi-custom residence spanning 2520 sqft, complemented by an additional 1000 sqft basement. This blueprint serves as a foundation upon which your imagination can flourish, offering the freedom to infuse every corner with your personal touch. With plans slated for pickup later this summer, the path to your dream home is rising to meet you! Reach out today to learn more about this exceptional offering and take the first step toward crafting the home of your dreams.

3664 E 29th Avenue | MLS# 4607029

This land located at 3664 E 29th Avenue, Denver, CO 80205 is currently listed for sale with an asking price of $400,000. The property has approximately 0.11 Acres. E 29th Avenue is located within the Denver 1 school district. Search Denver real estate on www.dwell719.com today.

Property Features

Property Type: Land - Residential
Lot Size: 0.11 Acres
Taxes: $2,187

Feature Descriptions

Days on Site: 516
Exclusions: LAND ONLY
Lot: Level
Lot Dimensions: 66' x 75'
Parcel#: TBD
Sewer: Public Sewer
Utilities: Electricity Available, Natural Gas Available
Water: Public

Local Schools

School District: Denver 1

Listed By / Shown By

Listed By

Agency Name: Denver Nook
Agency Contact: Liz@DenverNook.com,970-919-0447

Shown By

Agent Name: Dwell 719
Agent Phone: (719) 244-2696
Agency Title: The Cutting Edge, Realtors

IDX logo

Estimate Your Payment

Estimated Payment

$ 2,269.21 per month $1,970.30 Principal & Interest $182.25 Property Tax $116.67 Homeowner's Insurance

Change Payment Information

%
years/fixed
yearly
yearly (est.)
(Payments are an estimate and may vary by lender)

Contact Laura Hemsworth & Lisa Ramsey Today! Phone: (719) 505-5561 Email: Laura@LoansWithMilestone.com

Login to My Property Finder

Pixel