(719) 244-2696 Dwell 719 Real Estate Team
Refine Search

85 S Stewart Street, Keenesburg, CO 80643

$405,000
  • 85 S Stewart Street, Keenesburg, CO 80643 Main Photo

5 Total Photos [Click to View All]

Active
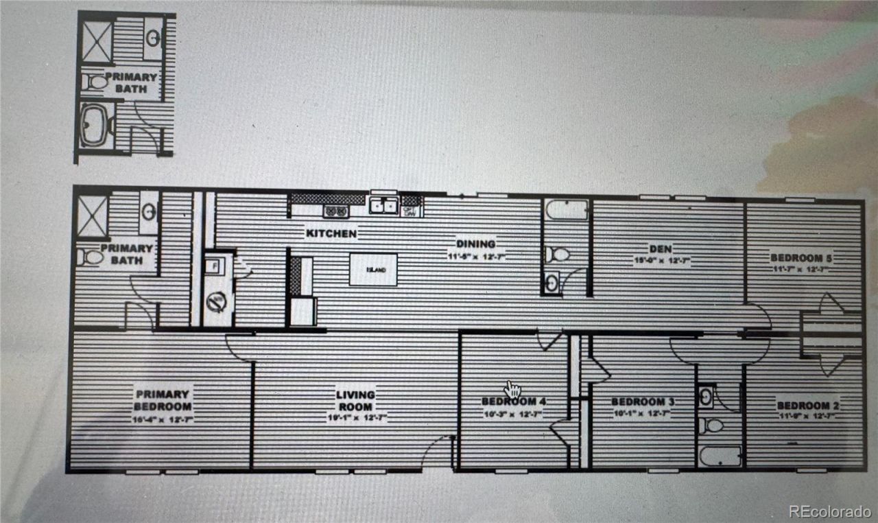
BEDS5 BATHS3 SQUARE FEET2,000 MLS#5229136
STATUSActive PROPERTY TYPEResidential - Single Family SCHOOLWeld County RE 3-J

Listing Courtesy of: DAY AND COMPANY INC
Agency Contact: homesbuydeanne@gmail.com,303-667-8617
IDX logo


Property Description

This is a home that can be on this property - see reference to MLS # 3609895 for the vacant lot. For buyers who prefer a more turnkey option, Clayton Homes has proposed a 5-bedroom, 3-bath home with an office, approximately 2,000 sq. ft., which would include the home, setup on the property, and all Town of Keenesburg costs?***APPROXIMATELY $405,000.****. Clayton Homes offers multiple floor plans and options, so feel free to reach out to me for more information and pricing on the model that best suits your needs. Conveniently located about 10 minutes from Roggen and the new Rodeo Dunes Golf Course, this property offers space, flexibility, and a great small-town setting. Come take a look and imagine the possibilities! THIS IS A GREAT PRICE FOR A BRAND NEW HOME THAT TAKES THE STRESS OUT OF YOU DOING ALL THE WORK!! According to the Town of Keenesburg, this is zoned R-2 - so you can have 2 homes on this lot. If you want a tiny home, the minimum is 700 s.f. Another plus is you can have up to 4 chickens. ***No Metro District and NO HOA!***

85 S Stewart Street | MLS# 5229136

This single family home located at 85 S Stewart Street, Keenesburg, CO 80643 is currently listed for sale with an asking price of $405,000. This property has 5 bedrooms with 2000 sq. ft. S Stewart Street is located within the Weld County RE 3-J school district. Search Keenesburg real estate on www.dwell719.com today.

Property Features

Property Type: Residential - Single Family
Cooling: Central Air
Heating: Forced Air
Lot Size: 0.23 Acres
Stories: 1.0

Amenities

Ceiling Fan(s)
Eat-in Kitchen
Kitchen Island
No Stairs
Open Floorplan
Pantry
Primary Suite
Smoke Free
Walk-In Closet(s)
Private Yard

Feature Descriptions

Appliances: Dishwasher, Range, Refrigerator
Baths Total: 3
Days on Site: 15
Lot: Level
Lot Dimensions: 9855
Security: Carbon Monoxide Detector(s), Smoke Detector(s)
Sewer: Public Sewer

Local Schools

High School: Weld Central
Middle School: Weld Central
Elementary School: Hoff
School District: Weld County RE 3-J

Listed By / Shown By

Listed By

Agency Name: DAY AND COMPANY INC
Agency Contact: homesbuydeanne@gmail.com,303-667-8617

Shown By

Agent Name: Dwell 719
Agent Phone: (719) 244-2696
Agency Title: The Cutting Edge, Realtors

IDX logo

Estimate Your Payment

Estimated Payment

$ 2,113.05 per month $1,994.92 Principal & Interest $0.00 Property Tax (data not provided by mls) $118.13 Homeowner's Insurance

Change Payment Information

%
years/fixed
yearly
yearly (est.)
(Payments are an estimate and may vary by lender)

Contact Laura Hemsworth & Lisa Ramsey Today! Phone: (719) 505-5561 Email: Laura@LoansWithMilestone.com

Login to My Property Finder

Pixel